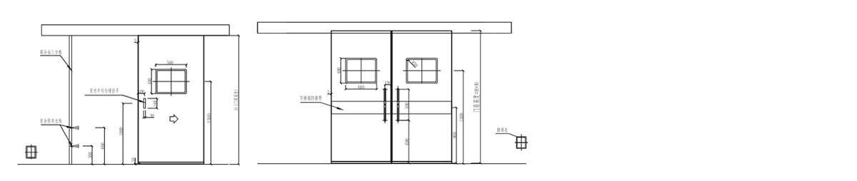
自動氣密門--外掛式

產品描述
●氣密門國家標準:GB7106-2008
●應用場所:手術室、內窺鏡室、消毒室、診療室、觀察室、潔凈室、潔凈工廠
產品特點
●產品適用于對潔凈衛生、密閉性一般要求的手術室及診療室
●節能環保、強密封性、抗壓抗撞擊
●多種控制方式,開啟便捷
●安全傳感器,防夾功能
●運行平穩,噪音小
產品參數
開啟方式 | 左開 | 右開 |
門體重量 | 100KG | |
單扇門體寬度 | 600~2000mm | |
安裝方式 | 表面/內藏 | |
馬達 | DC24V 60W直流無刷 | |
開啟速度 | 14~37cm/秒(可調) | |
關閉速度 | 9~35cm/秒(可調) | |
開放時間 | 0~9秒(可調) | |
手動開啟力 | 30.3N | |
環境溫度 | -20~+50℃ | |
電源電壓 | AC 200~250V 50/60HZ | |

